



I september 1996 förstördes delar av det gamla biblioteket i en omfattande brand där huvudbyggnaden brann ner till grunden och en ovärderlig samling av böcker, skrifter och konstverk försvann i lågorna. Politikerna beslutade snabbt att ett nytt bibliotek skulle byggas och utlyste en arkitekttävling som vanns av Nyréns förslag ”Vända sida”. Namnet kom sig av att arkitekterna placerade entrén ut mot Östgötagatan istället för in mot stadens centrum.
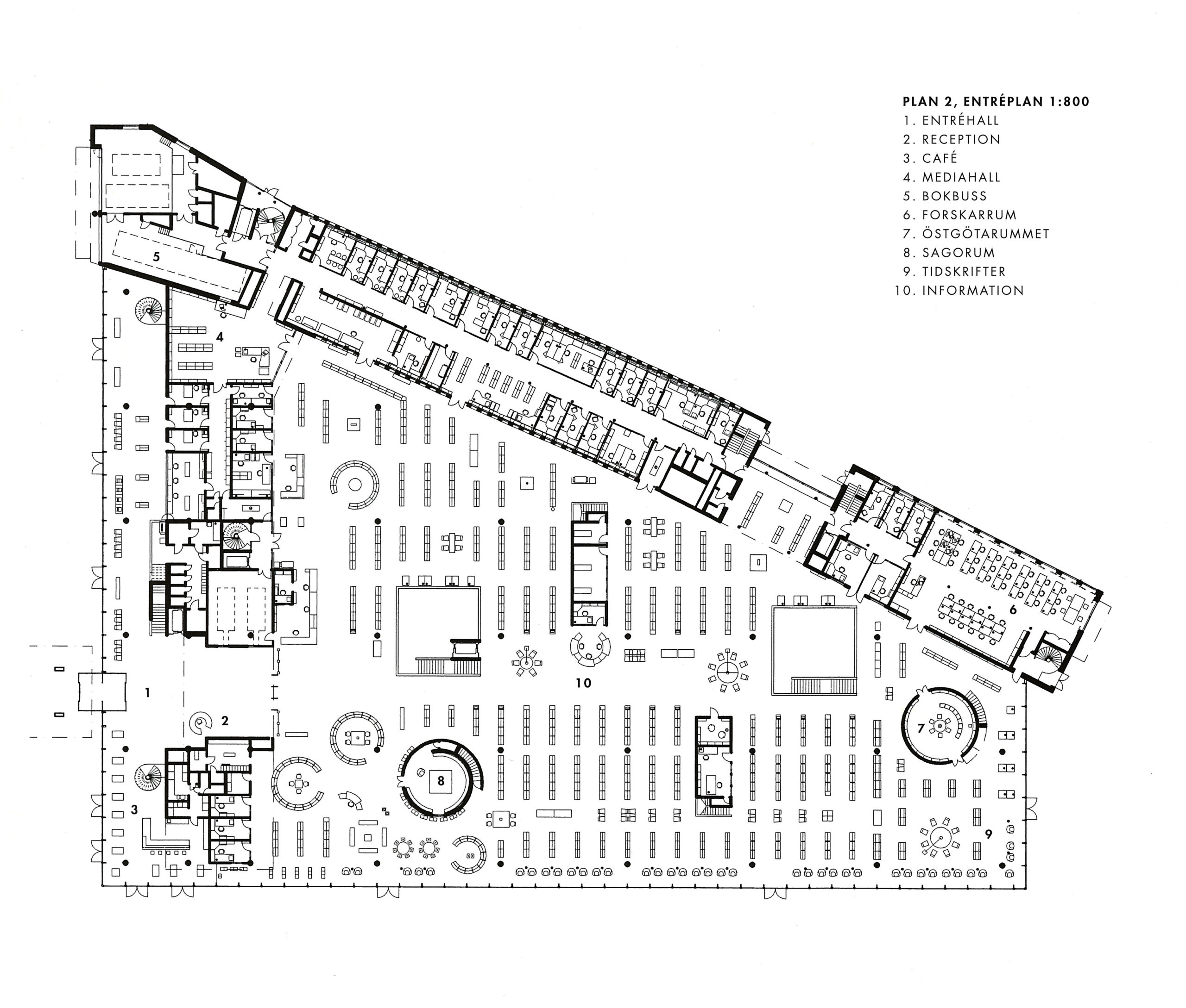
Biblioteket har en enkel uppbyggnad med två huvudelement i form av de låga längorna mot Hunnebergsgatan och den stora bokhallen mot entréplatsen och parken. Biblioteket är uppbyggt av slitstarka och vackra naturmaterial och byggnaden släpper in rikligt med dagsljus.

För bibliotekets inredning specialritade vi alla diskar, bokhyllor, ställ och förvaringsmöbler samt tog fram en ny hyll- och bordsbelysning. Två stora armaturer håller ihop inredningen – en 72 meter lång armatur som leder in i bokhallen och en stor rund armatur som dels binder ihop rummet för tidningsläsning på hyllan, dels fungerar som lykta mot entrén om kvällarna. Formgivaren Gunilla Allard ritade nya stolar och fåtöljer till biblioteket.




Landskapsprojektet består av ett nytt entrétorg samt delar av Kungsträdgården som har sina rötter i tidig medeltid.
Biblioteksplatsen med sin övergripande triangulära form följs upp i beläggningen av specialgjutna betongplattor och placeringen av askträd, belysning med mera. Mot parken finns en parterr av bokstäver i klippt bok.
