







”Mitt första projekt ritade jag i gymnasiet. Det var en bild på det nya länsmuseet som Lettström och Linnman just då vunnit.
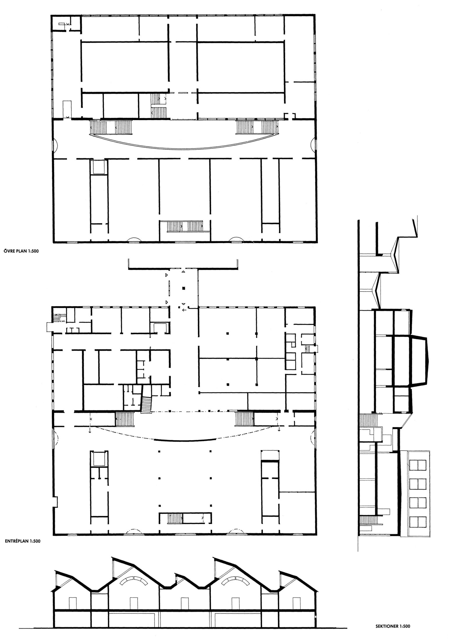
50 år senare bygger jag brutalt in museets ena huvudfasad. Den andra hade Jan Wallinder redan byggt stadsbiblioteket framför. Det blev en typisk triptyk där det ursprungliga museet i mitten fick bli arbetsplats och magasin och det nya utställningssalar.
En trapphall med två monumentala museitrappor lades emellan det gamla och det nya och mot staden utanför planterades en småländsk äng med hasselbuskar inhägnad av stenmur.
Materialet till golv, väggar och tak har valts så att golv och tak är av trä och väggar av betong. De obehandlade grangolven kan man spika och fästa i. Trä är Småland. Trä kan formas så att det uppstår springor nödvändiga för god akustik. Trä är ett levande material som ger en behaglig, mjuk atmosfär.”
Carl Nyrén
Jönköpings läns museum belönades 1993 med SAR:s Kasper Salinpris och ÖGA:s arkitekturpris. I motiveringen till priset talas bland annat om hur det i byggnaden förenas ”poetisk ingivelse med yttersta direkthet och enkelhet till rum av vibrerande rymd och ljus”.







